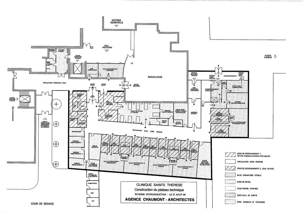
Urgences et Fonctionnalités
Créer un bloc opératoire de 6 salles d’opération, une salle de réveil et les bureaux des anesthésistes.
Restructurer le service d’entrée des urgences, en liaison aux autres services de la clinique.
Maître d'ouvrage : Clinique Sainte-Thérèse
Lieu : Villeneuve sur Lot - 47
Surface : 1 560
Mission : Étude
Budget : 1 900 000 € HT
Date du projet : 1996


